











Aceasta proprietate a fost deja inchiriata! Pentru oferte similare contactati agentul
Prima inchiriere - complet mobilat si utilat - loc de parcare suprateran
Bucuresti, Crangasi
575€
Camere
2
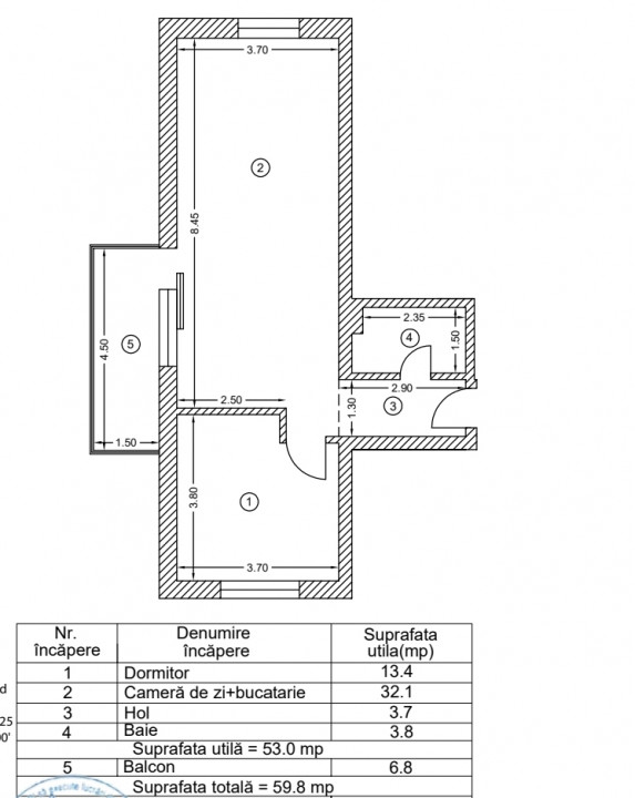
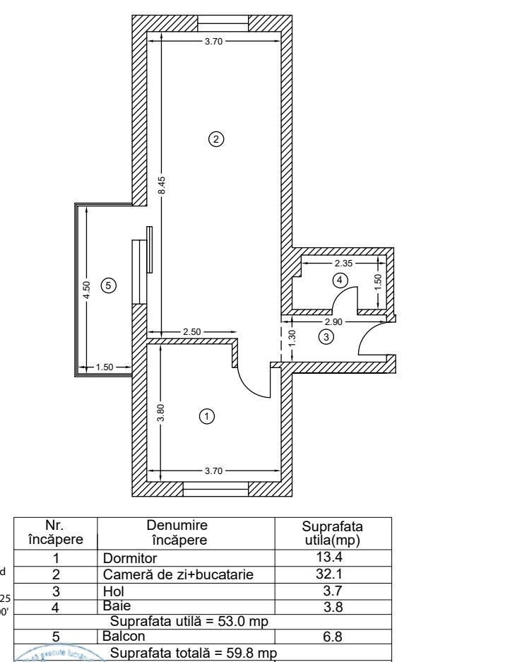
Suprafata utila
53 mp
Suprafata construita
67 mp
Etaj
Etaj 1
Bai
1
Parcari
1
- ID:EC16506
- Nr. camere:2
- Nr. dormitoare:1
- S. utila:53.00 mp
- S. balcoane:6.80 mp
- S. utila totala:59.80 mp
- S. construita:67.00 mp
- Comp.:Open space
- Confort:Lux
- Etaj:Etaj 1
- Nr. bucatarii:1
- Nr. bai:1
- Nr. balcoane:1
- Nr. parcari:1
- An constructie:2024
- An renovare:2024
- Structura:Beton
- Tip imobil:Bloc
- Regim inaltime:S+P+5
- Orientare:Est
- Avans:1
- Garantie:1
- Clasa energetica:A
Descriere
Va prezint spre inchiriere un apartament cu 2 camere, in suprafata total utila de 59.8 mp situat la etajul 1, in ansamblul NearCenter Residence , pe strada George Valsan 45-47.
Apartamentul este la prima inchiriere si se preda complet mobilat si utilat.Acesta a fost amenajat cu bun gust, fiind valorificat tot spatiul.
Dispune de un loc de parcare suprateran.
In imediata apropiere gasim : Parcul , Metroul si Piata Crangasi, statia de tramvai 41, Auchan, liceul Marin Preda, Promenada Lacului Morii.
Citeste mai mult
Apartamentul este la prima inchiriere si se preda complet mobilat si utilat.Acesta a fost amenajat cu bun gust, fiind valorificat tot spatiul.
Dispune de un loc de parcare suprateran.
In imediata apropiere gasim : Parcul , Metroul si Piata Crangasi, statia de tramvai 41, Auchan, liceul Marin Preda, Promenada Lacului Morii.
Specificatii
Curent
Apa
Canalizare
Gaz
CATV
Telefon
Acces internet
Fibra optica
Utilitati in zona
Centrala imobil
Calorifere
Aer conditionat
Izolatie Exterior
Bloc izolat termic
Vopsea lavabila
Faianta
Parchet
Gresie
Ferestre Termopan
Usa intrare Metal
Usa interior Lemn
Bucatarie Mobilata
Apometre
Contor caldura
Mobilat Lux
Interfon
Lift
Curte comuna