


















Aceasta proprietate a fost deja vanduta! Pentru oferte similare contactati agentul
Apartament 3 camere Dobroesti, parcare,mobilat utilat gata de chirie
Dobroesti, Central
79.900€
Camere
3
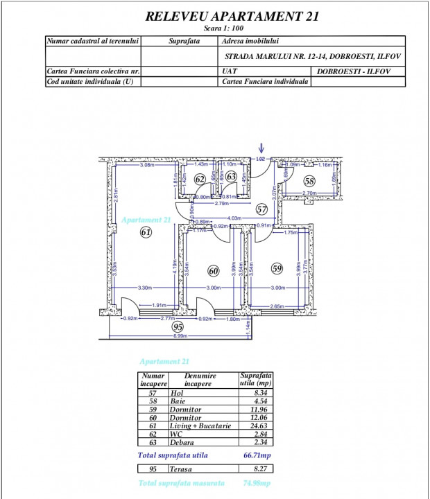
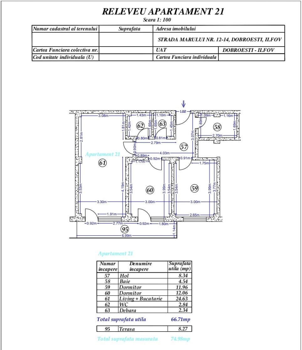
Suprafata utila
68 mp
Suprafata construita
78 mp
Etaj
Etaj 4
Bai
2
Parcari
1
- ID:CC17009
- Nr. camere:3
- Nr. dormitoare:2
- S. utila:68.00 mp
- S. balcoane:8.50 mp
- S. utila totala:76.50 mp
- S. construita:78.00 mp
- Comp.:Decomandat
- Confort:1
- Etaj:Etaj 4
- Nr. bucatarii:1
- Nr. bai:2
- Nr. balcoane:2
- Nr. parcari:1
- An constructie:2014
- An renovare:2018
- Structura:Beton
- Tip imobil:Bloc
- Regim inaltime:P+5
- Orientare:Sud-Vest
Descriere
Apartament 3 camere aflat pe strada Marului in complex de 5 blocuri cu spatii de joaca pentru copii si multiple centre comerciale sau de servicii in proximitate
este ideal ca investitie sau pentru locuit avand o suprafata generoasa de 68 mp utili complet mobilat si utilat,doua balcoane (8,5 mp )plus loc de parcare in incinta ansamblului(in cota Indiviza)
Este dotat cu centrala proprie,dopua aparate de aer conditionat
Bloc cu doua lifturi
Achizitia poate fi facuta prin palta directa sau credite prima casa,imobiliar.
Colaborarea cu alte agentii este deschisa.
Prezentare video pe WhatsApp
Citeste mai mult
este ideal ca investitie sau pentru locuit avand o suprafata generoasa de 68 mp utili complet mobilat si utilat,doua balcoane (8,5 mp )plus loc de parcare in incinta ansamblului(in cota Indiviza)
Este dotat cu centrala proprie,dopua aparate de aer conditionat
Bloc cu doua lifturi
Achizitia poate fi facuta prin palta directa sau credite prima casa,imobiliar.
Colaborarea cu alte agentii este deschisa.
Prezentare video pe WhatsApp
Specificatii
Curent
Apa
Canalizare
Gaz
CATV
Acces internet
Fibra optica
Centrala proprie
Calorifere
Aer conditionat
Izolatie Exterior
Bloc izolat termic
Vopsea lavabila
Faianta
Vinarom
Parchet
Gresie
Ferestre PVC
Ferestre Termopan
Usa intrare Metal
Usa interior Lemn
Wc serviciu
Debara
Bucatarie Mobilata
Bucatarie Utilata
Apometre
Contor gaz
Complet mobilat
Interfon
Lift
Spatii agrement
Acoperis
Curte
Curte comuna
Gradina