


























Aceasta proprietate a fost deja vanduta! Pentru oferte similare contactati agentul
Piata Romana | Lascar Catargiu | Calea Victoriei - 5 camere pe Nicolae Iorga
Bucuresti, P-ta Romana
155.000€
Camere
5
Suprafata utila
109.09 mp
Suprafata construita
140 mp
Etaj
Etaj 4
Bai
2
An constructie
1940
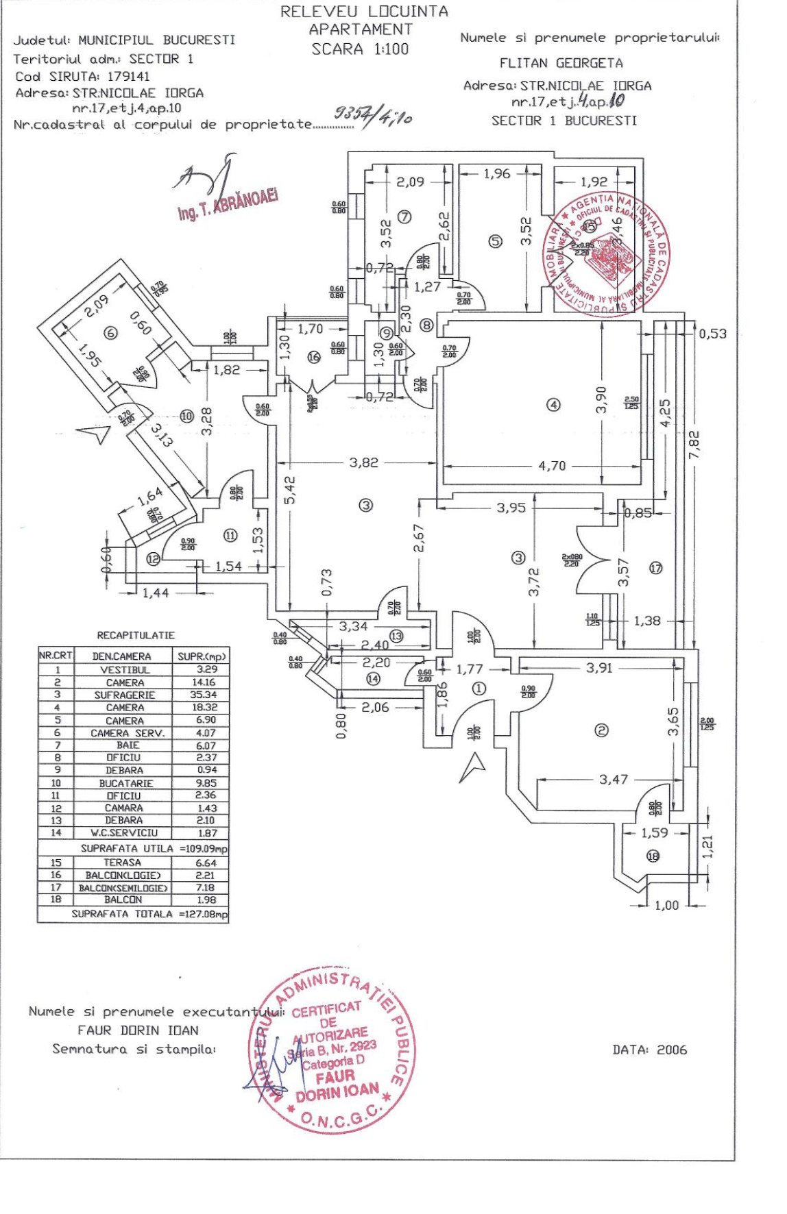
- ID:AC20128
- Nr. camere:5
- Nr. dormitoare:3
- S. utila:109.09 mp
- S. balcoane:11.37 mp
- S. terase:6.64 mp
- S. utila totala:127.10 mp
- S. construita:140.00 mp
- Comp.:Semidecomandat
- Confort:1
- Etaj:Etaj 4
- Nr. bucatarii:1
- Nr. bai:2
- Nr. balcoane:3
- An constructie:1940
- An renovare:1990
- Structura:Beton
- Tip imobil:Bloc
- Regim inaltime:S+P+6
- Orientare:Nord-Vest
- Risc seismic:Clasa II
- Clasa energetica:C
Descriere
Apartament 5 camere, Nicolae Iorga
Vă prezentăm o proprietate rară, situată în inima Bucureștiului, pe una dintre cele mai exclusiviste și căutate străzi din zona centrală: Nicolae Iorga. Acest apartament de 5 camere reprezintă "pânza albă" perfectă pentru cineva care își dorește o locuință cu personalitate, un sediu de birou prestigios sau o investiție strategică într-o locație cu o valoare istorică și imobiliară incontestabilă.
Locație de Top: Piața Romană
Amplasat pe Strada Nicolae Iorga, nr. 17, la doar câțiva pași de Piața Romană și Bulevardul Lascăr Catargiu și Calea Victoriei, apartamentul beneficiază de un acces facil către cele mai bune puncte de interes ale capitalei: restaurante de renume, instituții de învățământ de elită, hub-uri de afaceri și zone verzi. Este o adresă care vorbește de la sine despre stil și statut.
Elementul spectaculos al acestui apartament este, fără îndoială, terasa generoasă. De aici, vă puteți bucura de o vedere liberă și panoramică asupra orașului, un avantaj rar întâlnit în zona ultra centrală, unde densitatea clădirilor este ridicată. Este spațiul ideal pentru relaxare deasupra agitației urbane, oferind un cadru perfect pentru apusuri memorabile și momente de liniște.
Configurație și Potențial
Apartamentul este spațios, cu o compartimentare ce permite multiple variante de reamenajare. Proprietatea necesită o renovare completă, oferind viitorului proprietar libertatea totală de a-și pune amprenta asupra designului interior, finisajelor și dotărilor tehnice, transformându-l într-o bijuterie arhitecturală modernă într-un context istoric.
Acest apartament este o oportunitate pentru cei care înțeleg valoarea locației și a spațiului exterior într-o metropolă. Vă invităm să descoperiți potențialul acestui spațiu în cadrul unei vizionări!
Contactați-mă pentru detalii și programări!
Informații utile despre imobil:
Construcție 1940
Incadrat Rs2
Etaj 4/6
Suprafață totală: 127 mp, din care 109 mp utili.
1 Grup sanitar + 1 Baie cu aerisire.
3 balcoane și 1 terasă.
1 cămară și 3 debarale
Încălzire: Centrală termică apartament ( 2 ani vechime).
2 lifturi - 1 palier principal, 1 pe scara de serviciu.
Citeste mai mult
Vă prezentăm o proprietate rară, situată în inima Bucureștiului, pe una dintre cele mai exclusiviste și căutate străzi din zona centrală: Nicolae Iorga. Acest apartament de 5 camere reprezintă "pânza albă" perfectă pentru cineva care își dorește o locuință cu personalitate, un sediu de birou prestigios sau o investiție strategică într-o locație cu o valoare istorică și imobiliară incontestabilă.
Locație de Top: Piața Romană
Amplasat pe Strada Nicolae Iorga, nr. 17, la doar câțiva pași de Piața Romană și Bulevardul Lascăr Catargiu și Calea Victoriei, apartamentul beneficiază de un acces facil către cele mai bune puncte de interes ale capitalei: restaurante de renume, instituții de învățământ de elită, hub-uri de afaceri și zone verzi. Este o adresă care vorbește de la sine despre stil și statut.
Elementul spectaculos al acestui apartament este, fără îndoială, terasa generoasă. De aici, vă puteți bucura de o vedere liberă și panoramică asupra orașului, un avantaj rar întâlnit în zona ultra centrală, unde densitatea clădirilor este ridicată. Este spațiul ideal pentru relaxare deasupra agitației urbane, oferind un cadru perfect pentru apusuri memorabile și momente de liniște.
Configurație și Potențial
Apartamentul este spațios, cu o compartimentare ce permite multiple variante de reamenajare. Proprietatea necesită o renovare completă, oferind viitorului proprietar libertatea totală de a-și pune amprenta asupra designului interior, finisajelor și dotărilor tehnice, transformându-l într-o bijuterie arhitecturală modernă într-un context istoric.
Acest apartament este o oportunitate pentru cei care înțeleg valoarea locației și a spațiului exterior într-o metropolă. Vă invităm să descoperiți potențialul acestui spațiu în cadrul unei vizionări!
Contactați-mă pentru detalii și programări!
Informații utile despre imobil:
Construcție 1940
Incadrat Rs2
Etaj 4/6
Suprafață totală: 127 mp, din care 109 mp utili.
1 Grup sanitar + 1 Baie cu aerisire.
3 balcoane și 1 terasă.
1 cămară și 3 debarale
Încălzire: Centrală termică apartament ( 2 ani vechime).
2 lifturi - 1 palier principal, 1 pe scara de serviciu.
Video
Specificatii
Curent
Apa
Canalizare
Gaz
Centrala proprie
Calorifere
Parchet
Ferestre PVC
Ferestre Lemn
Rulouri Lemn
Usa intrare Lemn
Usa interior Lemn
Terasa
Wc serviciu
Debara
Bucatarie Nemobilata
Bucatarie Neutilata
Apometre
Contor gaz
Nemobilat
Interfon
Lift