






























Imobil Com. Tătărăștii de Sus, Jud. Teleorman, comision 0% cumparator
Tatarastii de Sus, Central
95.000€
Camere
4
Suprafata utila
94.10 mp
Suprafata construita
142.60 mp
Bai
2
An constructie
2021
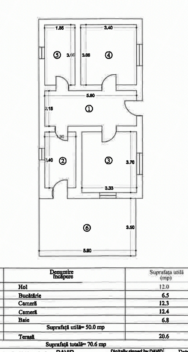
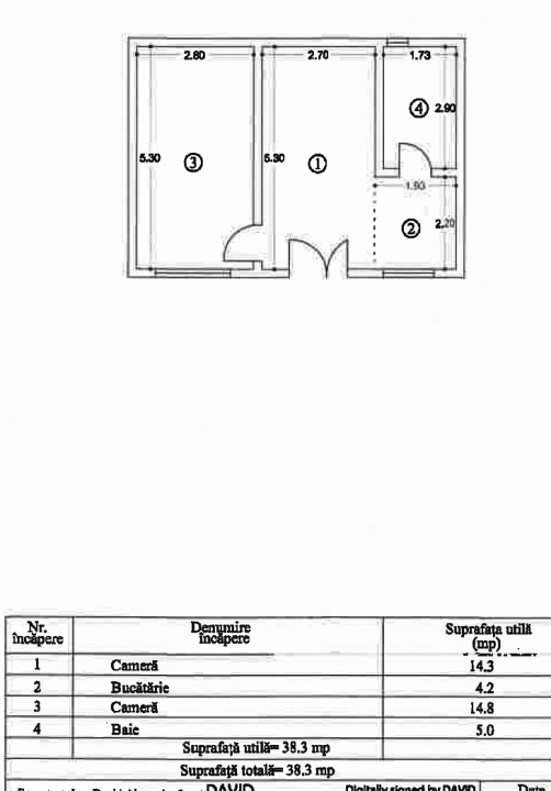
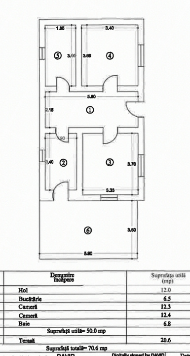
- ID:SS20749
- Nr. camere:4
- Nr. dormitoare:3
- S. utila:94.10 mp
- S. terase:20.60 mp
- S. utila totala:114.70 mp
- S. construita:142.60 mp
- S. teren:3552.00 mp
- Nr. bucatarii:1
- Nr. bai:2
- Front stradal:39.00 m
- Nr. fronturi:1
- An constructie:2021
- An renovare:2025
- Structura rezistenta:Caramida
Descriere
Casă de vânzare în județul Teleorman, Com. Tătărăștii de Sus – liniște, spațiu și confort
Vă propunem spre vânzare o casă primitoare situată într-o zonă liniștită din județul Teleorman, ideală pentru cei care își doresc un stil de viață relaxat, departe de agitația urbană.
Proprietatea dispune de un teren generos (3552 mp), perfect pentru grădinărit, relaxare sau amenajarea unui spațiu de recreere. Locuința este formata din 2 corpuri de casa (unul din caramida si celalalt din panouri tip sandwich, ambele cu fundatie de beton), oferind camere luminoase (3 dormitoare), bucătărie, terasa și 2 bai, fiind potrivită atât pentru locuit permanent, cât și ca reședință de vacanță.
Casa se vinde complet mobilata si utilata, beneficiază de utilități esențiale (curent, apa si canalizare), hidrofor si aspersoare de udat gazonul, 2 camere video de supraveghere și acces facil la drum principal, magazine și alte puncte de interes din zonă. Curtea largă oferă multiple posibilități de amenajare, inclusiv foișor, livadă sau spațiu pentru animale.
Dacă îți dorești liniște, aer curat și un loc pe care să îl numești „acasă”, această proprietate poate fi alegerea ideală.
Pentru mai multe detalii și programarea unei vizionări, nu ezitați să ne contactați! Comision 0% cumparator.
Citeste mai mult
Vă propunem spre vânzare o casă primitoare situată într-o zonă liniștită din județul Teleorman, ideală pentru cei care își doresc un stil de viață relaxat, departe de agitația urbană.
Proprietatea dispune de un teren generos (3552 mp), perfect pentru grădinărit, relaxare sau amenajarea unui spațiu de recreere. Locuința este formata din 2 corpuri de casa (unul din caramida si celalalt din panouri tip sandwich, ambele cu fundatie de beton), oferind camere luminoase (3 dormitoare), bucătărie, terasa și 2 bai, fiind potrivită atât pentru locuit permanent, cât și ca reședință de vacanță.
Casa se vinde complet mobilata si utilata, beneficiază de utilități esențiale (curent, apa si canalizare), hidrofor si aspersoare de udat gazonul, 2 camere video de supraveghere și acces facil la drum principal, magazine și alte puncte de interes din zonă. Curtea largă oferă multiple posibilități de amenajare, inclusiv foișor, livadă sau spațiu pentru animale.
Dacă îți dorești liniște, aer curat și un loc pe care să îl numești „acasă”, această proprietate poate fi alegerea ideală.
Pentru mai multe detalii și programarea unei vizionări, nu ezitați să ne contactați! Comision 0% cumparator.
Specificatii
Curent
Apa
Canalizare
Put
Acces internet
Soba teracota
Izolatie Exterior
Izolatie Interior
Vopsea lavabila
Faianta
Parchet
Gresie
Ferestre PVC
Ferestre Termopan
Usa intrare Metal
Usa intrare Lemn
Usa interior Celulare
Usa interior Lemn
Anexe
Bucatarie Mobilata
Bucatarie Utilata
Apometre
Complet mobilat
Curte
Gradina