
































Aceasta proprietate a fost deja vanduta! Pentru oferte similare contactati agentul
Casa S+P+E 178 mp Lot 319 mp Bacu, Joita
Bacu, Central
110.000€
Camere
5
Suprafata utila
173 mp
Suprafata construita
212 mp
Bai
2
An constructie
2010
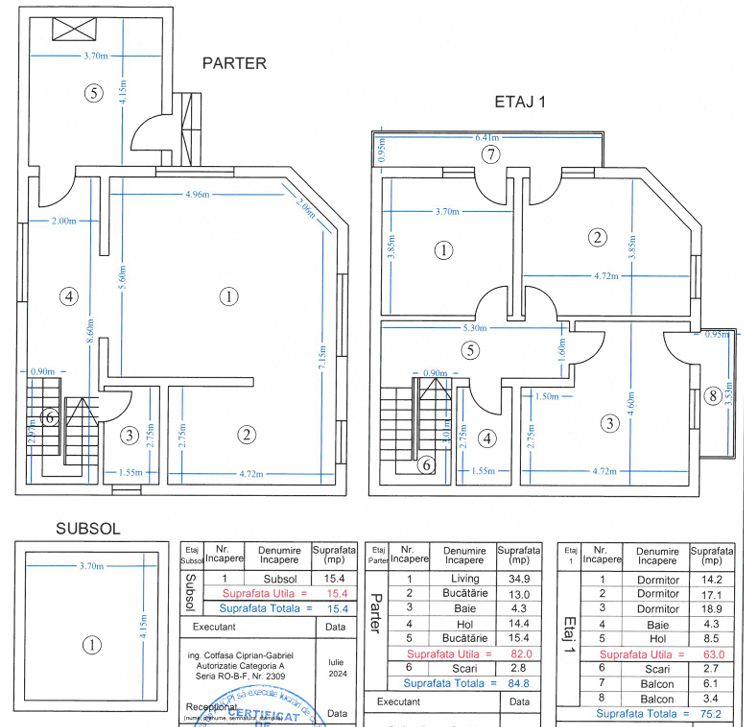
- ID:VP15962
- Nr. camere:5
- Nr. dormitoare:3
- S. utila:173.00 mp
- S. terase:10.00 mp
- S. utila totala:183.00 mp
- S. construita:212.00 mp
- S. teren:319.00 mp
- Nr. bucatarii:1
- Nr. bai:2
- Nr. balcoane:2
- Nr. parcari:3
- Front stradal:17.00 m
- Nr. fronturi:1
- An constructie:2010
- An renovare:2022
- Structura rezistenta:Beton
- Regim inaltime:S+P+1
- Orientare:Est
- Clasa energetica:B
- Consum specific:130.12
- Indice emisii:27.29
- C. energ. reg.:3.1
Descriere
Cu grija si atentie la lucruri mici va prezint un coltisor de rai, casa in care s-a plantat dragoste, situată într-o zonă linistita, ferită de agitația urbana, perfecta pentru cine doreste liniste si intimitate, situata in sat.Bacu, com.Joita. Casa S+P+E construită în 2011 si renovata in 2022 cu S 178mp, amprenta 106mp, lot 319mp, mai raman 213mp de teren liber care a fost impartit: spatiu pavat din fata curtii unde se pot parca 3 masini, iar spatele curtii este amenajat cu multa verdeata si loc de joacă sigur pentru copii. La Parter: Bucataria total mobilata si utilata, din Hol avem acces spre Living foarte spatios si luminos si o camera ce poate fi transformata in birou, baia mare cu cabina de dus si fereastra, spatiu de depozitare sub scara inerioara. La etaj: din hol avem acces spre 3 dormitoare cu 2 balcoane, baia mare cu cada si fereastra. Podea este din parchet, instalatia este din cupru in toata casa cu circuit separat pe parter si etaj, baia si bucataria cu gresie si faianta. Acoperisul casei a fost izolat suplimentar cu spumă poliuretanică, vata si tratat ignifug ceea ce a facut sa scadă semnificativ consumul de gaze pentru incalzirea casei iarna si protejeaza impotriva caldurilor excesive vara, apoi este acoperita cu tabla. Structura de rezistenţă este din beton armat iar zidaria din caramidă de 24 cm, tencuita si izolata cu polistiren si vată minerală de 15 cm, geamurile sunt triple. Casa dispune de Subsol, spatiu perfect pentru depozitare. Proprietatea are 2 puturi: unul in curte iar al doilea in subsol cu hidrofor, respectiv nu este pericol de inghet. Exista toate documentele constructiei. Iar pretul este corect ca si rata pe care o platesti la banca este una la fel de confortabila, doar 120.000 euro.
Această casă nu este doar o locuință, ci un cămin ce promite o viață liniștită și sigură, aproape de centrul orașului. Pe cei interesați Vă așteptăm la vizionare.
Citeste mai mult
Această casă nu este doar o locuință, ci un cămin ce promite o viață liniștită și sigură, aproape de centrul orașului. Pe cei interesați Vă așteptăm la vizionare.
Specificatii
Curent
Apa
Gaz
Put
Fosa septica
CATV
Telefon
Acces internet
Fibra optica
Utilitati in zona
Centrala proprie
Calorifere
Izolatie Exterior
Izolatie Interior
Parchet
Gresie
Ferestre Termopan
Usa intrare Metal
Usa interior Lemn
Pivnita
Spatiu depozitare
Dressing
WC Serviciu
Anexe
Dependinte
Bucatarie Mobilata
Bucatarie Utilata
Contor gaz
Complet mobilat
Curte
Gradina