







Spațiu subsol | Vitan Center | 100 mp | Utilitati incluse
Bucuresti, Vitan
1.000€ + TVA
Camere
3
Suprafata utila
100 mp
Suprafata construita
120 mp
Etaj
Demisol
An constructie
2009
- ID:PB18920
- Nr. camere:3
- S. utila:100.00 mp
- Comp.:Compartimentat
- Clasificare:A
- Etaj:Demisol
- Nr. bai:1
- An constructie:2009
- Regim inaltime:S+P+7
- Garantie:1000
Descriere
Cladirea de birouri Vitan Center se află în Piața Vitan, la doar 500m de Piața Alba Iulia și București Mall.Cladirea dispune de fațadă vitrată, recepție, pază 24/24, supraveghere video, sistem antiincendiu, pardoseală flotantă, sistem de climatizare, termopane Schuco și 3 lifturi.
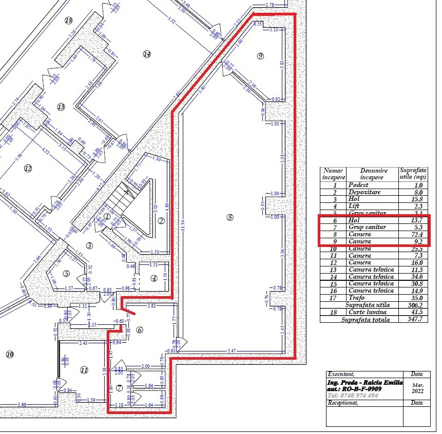
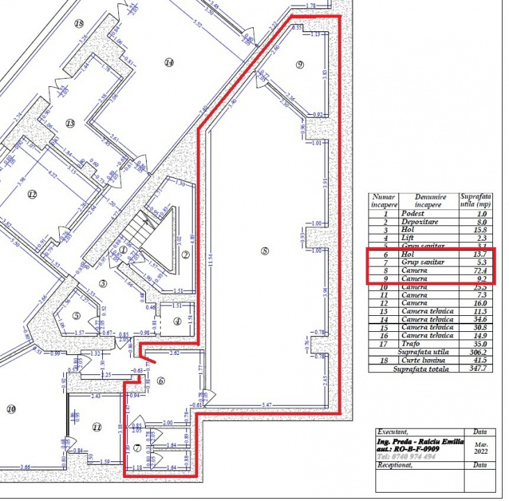
Spațiul se află la subsol, dispune de 100 mp utili si este compartimentat conform schitei atasate.
Pretabil pentru sala de dansuri, showroom, depozitare, sala de kickbox, studio de inregistrare etc.
Inaltimea spatiului in acest moment este de 232 cm dar cu posibilitate de inaltare pana la 282cm.
În prețul chiriei sunt incluse încălzirea și răcirea spațiului și a suprafețelor comune, apa, colectarea gunoiului, dezinsecția, deratizarea, curățenia, paza si recepția, excepție fiind doar curentul (consumul de la becuri și prize) care se achită separat in functie de consum.
Locurile de parcare sunt disponibile prin abonament la ADP la un cost de 20€/lună.
La pretul afisat se adauga TVA.
Pentru orice informații suplimentare mă puteți contacta!
Citeste mai mult
Spațiul se află la subsol, dispune de 100 mp utili si este compartimentat conform schitei atasate.
Pretabil pentru sala de dansuri, showroom, depozitare, sala de kickbox, studio de inregistrare etc.
Inaltimea spatiului in acest moment este de 232 cm dar cu posibilitate de inaltare pana la 282cm.
În prețul chiriei sunt incluse încălzirea și răcirea spațiului și a suprafețelor comune, apa, colectarea gunoiului, dezinsecția, deratizarea, curățenia, paza si recepția, excepție fiind doar curentul (consumul de la becuri și prize) care se achită separat in functie de consum.
Locurile de parcare sunt disponibile prin abonament la ADP la un cost de 20€/lună.
La pretul afisat se adauga TVA.
Pentru orice informații suplimentare mă puteți contacta!
Specificatii
Curent
Apa
CATV
Fibra optica
Centrala imobil
Aer conditionat
Izolatie Exterior
Vopsea lavabila
Gresie
Ferestre Termopan
Apometre
Nemobilat
Lift
Fatada tip Cortina de sticla
Acces securizat parcare
Acces pentru persoane cu disabilitati
Hidranti interior
Detectoare fum/temperatura
Sistem detectie incendiu
Generator
Administrare
Curatenie
Paza
Supraveghere video
Curatenie parcare