





STEFAN cel MARE Spatiu comercial stradal 650 mp
Bucuresti, Stefan cel Mare
6.500€
Camere
10
Suprafata utila
650 mp
Suprafata construita
670 mp
An constructie
2010
- ID:VP19909
- Nr. camere:10
- S. utila:650.00 mp
- S. construita:670.00 mp
- S. curte:534.00 mp
- S. vitrina:22.00 m
- Front stradal:22.00 m
- Comp.:Compartimentat
- Nr. bai:5
- Terase:3
- An constructie:2010
- Structura rezistenta:Beton
- Regim inaltime:S+P+1
Descriere
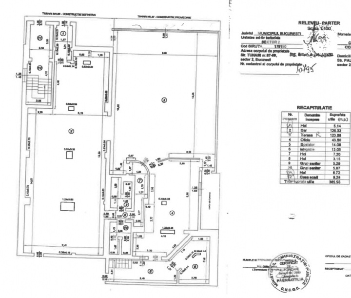
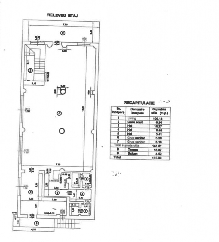
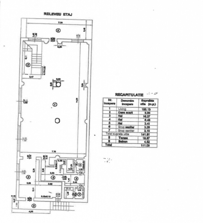
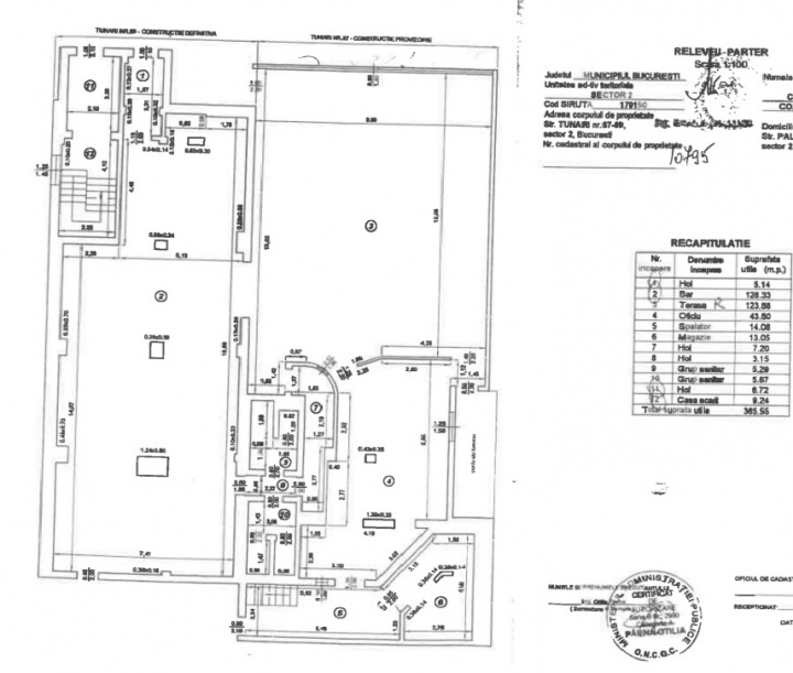
Spatiul comercial se afla pe strada Tunari nr.67-69 la 50 m de intersectia cu Șoseaua Ștefan cel Mare.
Dispune de un vad pietonal si comercial foarte bun, cu acces direct din strada Tunari.
Proprietatea are structura S+P+E cu suprafata totala de 650 mp utili, cu amprenta de 402 mp pe teren cu suprafata de 534 mp!
Pretabil pentru activitati comerciale care necesita un vad bun.
Proprietatea este conectata la toate Utilitatile: curent electric, gaze, salubrizare, etc.
Nu se aplica TVA.
Spatiul este disponibil imediat.
Pentru orice detalii ma puteti contacta!
Citeste mai mult
Dispune de un vad pietonal si comercial foarte bun, cu acces direct din strada Tunari.
Proprietatea are structura S+P+E cu suprafata totala de 650 mp utili, cu amprenta de 402 mp pe teren cu suprafata de 534 mp!
Pretabil pentru activitati comerciale care necesita un vad bun.
Proprietatea este conectata la toate Utilitatile: curent electric, gaze, salubrizare, etc.
Nu se aplica TVA.
Spatiul este disponibil imediat.
Pentru orice detalii ma puteti contacta!
Specificatii
Curent
Apa
Canalizare
Gaz
Put
Fosa septica
Curent trifazic
CATV
Telefon
Acces internet
Fibra optica
Utilitati in zona
Izolatie Exterior
Izolatie Interior
Parchet
Gresie
Ferestre PVC
Apometre
Contor gaz
Acoperis
Curte