



TARTASESTI, LOT 801 MP!
Tartasesti
30.000€
- ID:VP20623
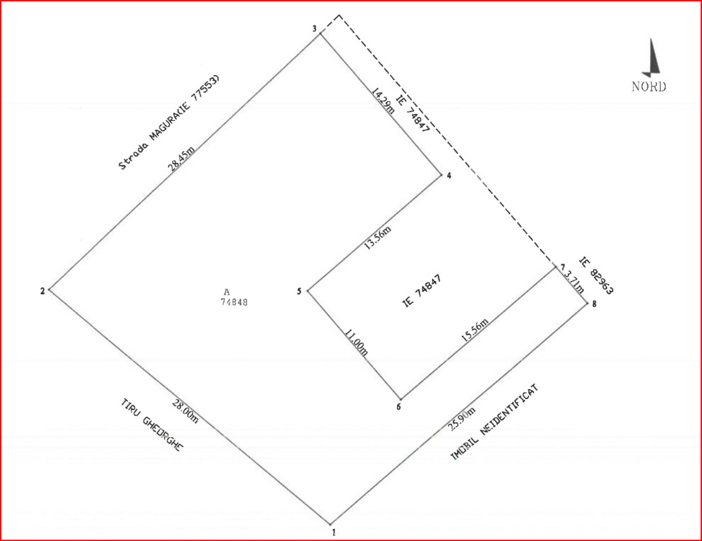
- S. teren:801.00 mp
- Front stradal:30.00 m
- Nr. fronturi:1
- Clasificare teren:Intravilan
- Regim inaltime:P+2+M
Descriere
Descoperă o oportunitate excelentă de investiție în Tărtășești, pe strada Măgura, în imediata apropiere a Primăriei, cu acces facil către DN7 și autostrada A1.
Proprietatea este formată din două loturi alipite, cu o suprafață totală de 801 mp și o deschidere generoasă de 30 ml, oferind multiple posibilități de dezvoltare. Poziționarea avantajoasă o recomandă atât pentru construirea unei locuințe, cât și pentru investiție, într-o zonă aflată în plină expansiune.
Tărtășeștiul atrage un interes tot mai mare din partea cumpărătorilor și investitorilor, datorită dezvoltărilor rezidențiale deja existente și potențialului ridicat de creștere. Prezența construcțiilor noi și a loturilor construibile confirmă evoluția accelerată a zonei și perspectivele excelente pe termen mediu și lung.
Zona oferă un echilibru ideal între liniștea vieții în afara orașului și accesul rapid către București, transformând această proprietate într-o alegere inspirată pentru cei care își doresc confort, accesibilitate și valoare în timp.
Citeste mai mult
Proprietatea este formată din două loturi alipite, cu o suprafață totală de 801 mp și o deschidere generoasă de 30 ml, oferind multiple posibilități de dezvoltare. Poziționarea avantajoasă o recomandă atât pentru construirea unei locuințe, cât și pentru investiție, într-o zonă aflată în plină expansiune.
Tărtășeștiul atrage un interes tot mai mare din partea cumpărătorilor și investitorilor, datorită dezvoltărilor rezidențiale deja existente și potențialului ridicat de creștere. Prezența construcțiilor noi și a loturilor construibile confirmă evoluția accelerată a zonei și perspectivele excelente pe termen mediu și lung.
Zona oferă un echilibru ideal între liniștea vieții în afara orașului și accesul rapid către București, transformând această proprietate într-o alegere inspirată pentru cei care își doresc confort, accesibilitate și valoare în timp.
Specificatii
Curent
Apa
Canalizare
Gaz
Put
Fosa septica
Curent trifazic
CATV
Telefon
Acces internet
Fibra optica
Utilitati in zona